茱萸木 |大阪・兵庫・京都の不動産投資(収益物件)ならライズ

株式会社ライズ
電話のアイコン

06-6232-8758

(受付時間:10時〜20時 / 土曜日・日曜日定休)

TOPページ
物件検索
不動産情報一覧

茱萸木 の検索結果一覧

種別で絞り込む 投資マンション 一棟売りマンション 一棟売りアパート 戸建賃貸 売り店舗・事務所 1棟売りビル 賃貸併用住宅 倉庫工場その他 ホテルペンション 土地 売地 借地 底地 その他
2件中1〜2件を表示
表示件数 並び順
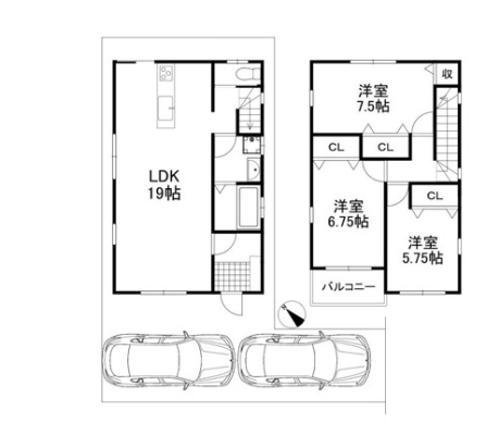
戸建賃貸 大阪府大阪狭山市茱萸木3丁の戸建賃貸の完成予想図(外観)

・鉄骨造の家 ・令和6年5月 外壁・屋根塗装工事・ベランダ防水工事施工済 ・令和6年7月 内装一部改装済

価格 1,470万円 
所在地 大阪府大阪狭山市茱萸木3丁
交通 南海高野線 金剛駅 徒歩18分
利回り 8.00% 建物面積 -
建物構造 投資用/S造 築年月 1997年4月
5枚  
戸建賃貸 大阪府大阪狭山市茱萸木3丁目の戸建賃貸の現地外観写真

・駐車スペース2台分! ・緑豊かな住環境!

価格 2,398万円 
所在地 大阪府大阪狭山市茱萸木3丁目
交通 南海高野線 金剛駅 徒歩19分
利回り - 建物面積 -
建物構造 投資用/木造 築年月 2013年8月
1枚  
表示件数 並び順


物件探しに役立つメリットが沢山 会員登録をする
  • 売却を依頼する
  • LINEを登録する

物件検索

SEARCH

ワンクリック検索

詳細検索 もっと詳しく検索したい方はこちら
  • 販売実績一覧を見る

REAL ESTATE SALE

不動産売却に
ついて

売却もライズにお任せ。

販売実績多数の信頼と実績の頼れるパートナーが豊富な経験と専門知識で安心サポート。

当社について

COMPANY

ライズの店舗内観写真

株式会社ライズ

  • 所在地

    〒 540-0012
    大阪市中央区谷町1丁目2番7号
    大手前ビル8階

  • TEL / FAX

    06-6232-8758 / 06-6232-8759

  • 営業時間

    毎週月曜日〜金曜日 / 10時〜20時

お客様へ

不動産情報は株式会社ライズにお任せください!株式会社ライズでは不動産情報を豊富にご用意しております。 新築戸建て・土地・マンションをお探しの方はぜひ株式会社ライズまでお問い合わせください。信頼あるスタッフがあなたのマイホーム探しのお手伝いをさせて頂きます。

【限定】未公開物件を閲覧する

PAGE TOP

Copyright ©raise-corp.com All rights reserved.