ダイアパレス白金 福岡県福岡市中央区白金1丁目15-7|1,790万円の投資マンション|株式会社ライズ

株式会社ライズ
電話のアイコン

06-6232-8758

(受付時間:10時〜20時 / 土曜日・日曜日定休)

投資マンション

ダイアパレス白金

お気に入り
価格 1,790万円
利回り 4.82% 満室時想定
年収/月収
86.4万円 / 7.2万円
所在地 福岡県福岡市中央区白金1丁目15-7 この地域周辺の物件を見る 築年月 1983年築
交通
西鉄天神大牟田線 薬院 徒歩5分
福岡市地下鉄七隈線 渡辺通 徒歩9分
ここがおすすめ

・南東向きバルコニー

お問い合わせ、資料請求、見学のお申し込みはこちらから

株式会社ライズ
06-6232-8758
「ホームページを見た」とお伝え下さい。

お問い合わせ番号をお伝えください
RHS-10350

内見予約
お問合せ

セールスポイント

特徴
  • バス・トイレ別
  • 室内洗濯機置場
  • エレベーター
  • 駐輪場
  • 本下水
  • 都市ガス
セールスコメント -

収益不動産を中心に扱う専門会社です。

◎【独自の仕入れルート】が当社の強みです。
独自の選定基準に基づき物件選定を行い、中長期運用や出口戦略を含むトータルでの運用提案を致します。

◎【資金調達のご相談賜ります】
不動産投資に強みのある銀行の探し方等資金計画をご提案

◎賃貸管理もワンストップでお任せ下さい。
経験豊富な専任スタッフがオーナー業務を代行致します。

◎来店&商談ブース有り 空き時間を活用してのオンライン相談も随時受け承ります。

◎WEB電子契約により安全で効率的な取引を提供致します。

◎まずはお気軽にご相談下さい。
【便利なLINE登録はこちら】 【無料会員登録はこちら】

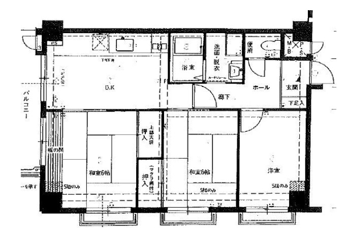
物件概要

所在階/階数 5階階/地上6階建 用途地域 第二種住居地域
構造 -
間取り 3DK
専有面積 60.8m2
バルコニー面積 7.28m²
管理費 12,700円 修繕積立金 19,040円
管理態様 委託(巡回) 管理組合 あり
テラス面積 - 専用庭面積 -
現況 賃貸中 引渡し 相談
土地権利 - 採光面 南東
駐車場 - 駐輪場
取引態様 仲介
情報更新日 2025年09月10日 次回更新日 2025年09月24日
情報更新日:2025年09月10日 次回更新予定日:2025年09月24日
※各種情報と差異がある場合は現況優先となります
  • こちらの物件を見たお客様はこんな物件もチェックしています。
  • お気に入り物件

同じ価格帯の物件はこちら

この物件以上の利回り物件はこちら

株式会社ライズ
06-6232-8758
「ホームページを見た」とお伝え下さい。

お問い合わせ番号をお伝えください
RHS-10350

内見予約
お問合せ

お問い合わせ

  1. 1
    内容入力
  2. 2
    内容確認
  3. 3
    完了
お問合せ内容必須
【備考欄】
詳細な見学ご希望時間、ご質問、ご希望条件などがございましたらお聞かせ下さい。
(2000文字以内)
お名前必須
メールアドレス必須
※ご記入いただいたメールアドレス宛てに、お問合せ内容の確認メールをお送りいたします。
※Yahoo!メールなどのフリーメールをご利用の場合、迷惑メールフォルダに入る場合があります。
 迷惑メールのフォルダ・設定等をご確認下さい。
電話番号必須
FAX(任意)
※ご入力いただいたお客さまの個人情報は、「個人情報の取扱いについて」に基づき適正に取り扱います。必ずお読みになり、同意の上お問い合わせください。

お気軽にお問い合わせください

06-6232-8758
物件番号 RHS-10350
※「ホームページを見た」
とお伝え下さい。

お役立ち機能

この物件を
携帯で確認!

物件探しに役立つメリットが沢山 会員登録をする
  • 売却を依頼する
  • LINEを登録する

物件検索

SEARCH

ワンクリック検索

詳細検索 もっと詳しく検索したい方はこちら
  • お客様の声を見る
  • 販売実績一覧を見る

REAL ESTATE SALE

不動産売却に
ついて

売却もライズにお任せ。

販売実績多数の信頼と実績の頼れるパートナーが豊富な経験と専門知識で安心サポート。

当社について

COMPANY

ライズの店舗内観写真

株式会社ライズ

  • 所在地

    〒 540-0012
    大阪市中央区谷町1丁目2番7号
    大手前ビル8階

  • TEL / FAX

    06-6232-8758 / 06-6232-8759

  • 営業時間

    毎週月曜日〜金曜日 / 10時〜20時

PAGE TOP

Copyright ©raise-corp.com All rights reserved.