フレックス21博多U 福岡県福岡市博多区千代2丁目|1,190万円の投資マンション|株式会社ライズ

株式会社ライズ
電話のアイコン

06-6232-8758

(受付時間:10時〜20時 / 土曜日・日曜日定休)

投資マンション

フレックス21博多U

お気に入り
価格 1,190万円
利回り 6.45% 満室時想定
年収/月収
76.8万円 / 6.4万円
所在地 福岡県福岡市博多区千代2丁目 この地域周辺の物件を見る 築年月 1991年1月築
交通
福岡市地下鉄空港線 祇園 徒歩9分
JR博多南線 博多 徒歩15分
ここがおすすめ

オーナーチェンジ物件

お問い合わせ、資料請求、見学のお申し込みはこちらから

株式会社ライズ
06-6232-8758
「ホームページを見た」とお伝え下さい。

お問い合わせ番号をお伝えください
RHS-10878

内見予約
お問合せ

セールスポイント

特徴
  • バス・トイレ別
  • バルコニー
  • エレベーター
  • オートロック
  • 駐輪場
  • バイク置き場
  • 本下水
  • 都市ガス
セールスコメント -

収益不動産を中心に扱う専門会社です。

◎【独自の仕入れルート】が当社の強みです。
独自の選定基準に基づき物件選定を行い、中長期運用や出口戦略を含むトータルでの運用提案を致します。

◎【資金調達のご相談賜ります】
不動産投資に強みのある銀行の探し方等資金計画をご提案

◎賃貸管理もワンストップでお任せ下さい。
経験豊富な専任スタッフがオーナー業務を代行致します。

◎来店&商談ブース有り 空き時間を活用してのオンライン相談も随時受け承ります。

◎WEB電子契約により安全で効率的な取引を提供致します。

◎まずはお気軽にご相談下さい。
【便利なLINE登録はこちら】 【無料会員登録はこちら】

物件概要

所在階/階数 3階階/地上14階建 用途地域 商業地域
構造 SRC造
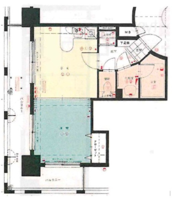
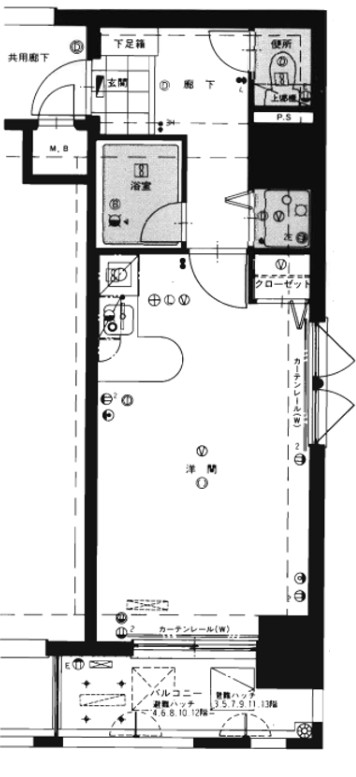
間取り 1R
専有面積 29.4m2
バルコニー面積 -
管理費 8,520円 修繕積立金 3,290円
管理態様 委託(巡回) 管理組合 -
テラス面積 - 専用庭面積 -
現況 賃貸中 引渡し 相談
土地権利 所有権 採光面 -
駐車場 - 駐輪場 -
取引態様 仲介
情報更新日 2026年02月19日 次回更新日 2026年03月05日
情報更新日:2026年02月19日 次回更新予定日:2026年03月05日
※各種情報と差異がある場合は現況優先となります

こちらの物件は複数区画の分譲地や他にも販売中の物件があります。

福岡県福岡市博多区千代2丁目の投資マンションの現地外観写真 福岡県福岡市博多区千代2丁目の投資マンションの間取り図(販N)
福岡市博多区千代2丁目
1190万円〜1200万円
  • こちらの物件を見たお客様はこんな物件もチェックしています。
  • お気に入り物件

同じ価格帯の物件はこちら

この物件以上の利回り物件はこちら

株式会社ライズ
06-6232-8758
「ホームページを見た」とお伝え下さい。

お問い合わせ番号をお伝えください
RHS-10878

内見予約
お問合せ

お問い合わせ

  1. 1
    内容入力
  2. 2
    内容確認
  3. 3
    完了
お問合せ内容必須
【備考欄】
詳細な見学ご希望時間、ご質問、ご希望条件などがございましたらお聞かせ下さい。
(2000文字以内)
お名前必須
メールアドレス必須
※ご記入いただいたメールアドレス宛てに、お問合せ内容の確認メールをお送りいたします。
※Yahoo!メールなどのフリーメールをご利用の場合、迷惑メールフォルダに入る場合があります。
 迷惑メールのフォルダ・設定等をご確認下さい。
電話番号必須
FAX(任意)
※ご入力いただいたお客さまの個人情報は、「個人情報の取扱いについて」に基づき適正に取り扱います。必ずお読みになり、同意の上お問い合わせください。

お気軽にお問い合わせください

06-6232-8758
物件番号 RHS-10878
※「ホームページを見た」
とお伝え下さい。

お役立ち機能

この物件を
携帯で確認!

物件探しに役立つメリットが沢山 会員登録をする
  • 売却を依頼する
  • LINEを登録する

物件検索

SEARCH

ワンクリック検索

詳細検索 もっと詳しく検索したい方はこちら
  • 販売実績一覧を見る

REAL ESTATE SALE

不動産売却に
ついて

売却もライズにお任せ。

販売実績多数の信頼と実績の頼れるパートナーが豊富な経験と専門知識で安心サポート。

当社について

COMPANY

ライズの店舗内観写真

株式会社ライズ

  • 所在地

    〒 540-0012
    大阪市中央区谷町1丁目2番7号
    大手前ビル8階

  • TEL / FAX

    06-6232-8758 / 06-6232-8759

  • 営業時間

    毎週月曜日〜金曜日 / 10時〜20時

PAGE TOP

Copyright ©raise-corp.com All rights reserved.