堺市南区庭代台4丁目 戸建 大阪府堺市南区庭代台4丁目|2,988万円の戸建賃貸|株式会社ライズ

株式会社ライズ
電話のアイコン

06-6232-8758

(受付時間:10時〜20時 / 土曜日・日曜日定休)

戸建賃貸

堺市南区庭代台4丁目 戸建

お気に入り
価格 2,988万円
利回り - 満室時想定
年収/月収
- / -
所在地 大阪府堺市南区庭代台4丁目 この地域周辺の物件を見る 築年月 1996年5月築
交通
泉北高速鉄道 栂・美木多 徒歩29分
建ぺい率 40 % 容積率 80 %
ここがおすすめ

・平成8年5月建築
・駐車スペース2台分(1台は車両制限有)
・屋根裏収納付き

お問い合わせ、資料請求、見学のお申し込みはこちらから

株式会社ライズ
06-6232-8758
「ホームページを見た」とお伝え下さい。

お問い合わせ番号をお伝えください
RHS-10877

内見予約
お問合せ

セールスポイント

特徴
  • システムキッチン
  • バス・トイレ別
  • 室内洗濯機置場
  • バルコニー
セールスコメント -

収益不動産を中心に扱う専門会社です。

◎【独自の仕入れルート】が当社の強みです。
独自の選定基準に基づき物件選定を行い、中長期運用や出口戦略を含むトータルでの運用提案を致します。

◎【資金調達のご相談賜ります】
不動産投資に強みのある銀行の探し方等資金計画をご提案

◎賃貸管理もワンストップでお任せ下さい。
経験豊富な専任スタッフがオーナー業務を代行致します。

◎来店&商談ブース有り 空き時間を活用してのオンライン相談も随時受け承ります。

◎WEB電子契約により安全で効率的な取引を提供致します。

◎まずはお気軽にご相談下さい。
【便利なLINE登録はこちら】 【無料会員登録はこちら】

物件概要

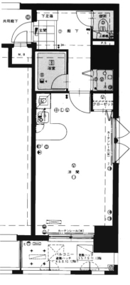
階数 地上2階建 用途地域 第一種低層住居専用地域
構造 木造
間取り 4LDK
土地面積 243m² (公簿) (73.5坪) 建物面積 143.25m2
専有面積帯
テラス面積 - 専用庭面積 -
現況 空家 引渡し 相談
土地権利 所有権 採光面 -
駐車場 駐輪場 -
法令上の制限 - 都市計画 -
地目 宅地 地勢 平坦
接道状況 接道: 北 9.5m 公道 道路幅: 6.5m 総戸数 -
私道負担面積 - セットバック -
建築確認番号
取引態様 仲介
情報更新日 2026年02月18日 次回更新日 2026年03月04日
情報更新日:2026年02月18日 次回更新予定日:2026年03月04日
※各種情報と差異がある場合は現況優先となります
  • こちらの物件を見たお客様はこんな物件もチェックしています。
  • お気に入り物件

同じ価格帯の物件はこちら

この物件以上の利回り物件はこちら

株式会社ライズ
06-6232-8758
「ホームページを見た」とお伝え下さい。

お問い合わせ番号をお伝えください
RHS-10877

内見予約
お問合せ

お問い合わせ

  1. 1
    内容入力
  2. 2
    内容確認
  3. 3
    完了
お問合せ内容必須
【備考欄】
詳細な見学ご希望時間、ご質問、ご希望条件などがございましたらお聞かせ下さい。
(2000文字以内)
お名前必須
メールアドレス必須
※ご記入いただいたメールアドレス宛てに、お問合せ内容の確認メールをお送りいたします。
※Yahoo!メールなどのフリーメールをご利用の場合、迷惑メールフォルダに入る場合があります。
 迷惑メールのフォルダ・設定等をご確認下さい。
電話番号必須
FAX(任意)
※ご入力いただいたお客さまの個人情報は、「個人情報の取扱いについて」に基づき適正に取り扱います。必ずお読みになり、同意の上お問い合わせください。

お気軽にお問い合わせください

06-6232-8758
物件番号 RHS-10877
※「ホームページを見た」
とお伝え下さい。

お役立ち機能

この物件を
携帯で確認!

物件探しに役立つメリットが沢山 会員登録をする
  • 売却を依頼する
  • LINEを登録する

物件検索

SEARCH

ワンクリック検索

詳細検索 もっと詳しく検索したい方はこちら
  • 販売実績一覧を見る

REAL ESTATE SALE

不動産売却に
ついて

売却もライズにお任せ。

販売実績多数の信頼と実績の頼れるパートナーが豊富な経験と専門知識で安心サポート。

当社について

COMPANY

ライズの店舗内観写真

株式会社ライズ

  • 所在地

    〒 540-0012
    大阪市中央区谷町1丁目2番7号
    大手前ビル8階

  • TEL / FAX

    06-6232-8758 / 06-6232-8759

  • 営業時間

    毎週月曜日〜金曜日 / 10時〜20時

PAGE TOP

Copyright ©raise-corp.com All rights reserved.