明石市大久保町大窪店舗付き住宅 兵庫県明石市大久保町大窪2610|580万円の戸建賃貸|株式会社ライズ

株式会社ライズ
電話のアイコン

06-6232-8758

(受付時間:10時〜20時 / 土曜日・日曜日定休)

TOPページ
物件検索
投資用・収益物件
明石市
JR山陽本線
明石市大久保町大窪店舗付き住宅

戸建賃貸

明石市大久保町大窪店舗付き住宅利回り14%以上

お気に入り
価格 580万円
利回り 14.79% 満室時想定
年収/月収
85.8万円 / 7.2万円
所在地 兵庫県明石市大久保町大窪2610 この地域周辺の物件を見る 築年月 1977年1月築
交通
JR山陽本線 大久保 徒歩26分/バス6分 停歩6分
建ぺい率 50 % 容積率 100 %
ここがおすすめ

現況法人契約中!利回り14.79%!

お問い合わせ、資料請求、見学のお申し込みはこちらから

株式会社ライズ
06-6232-8758
「ホームページを見た」とお伝え下さい。

お問い合わせ番号をお伝えください
RHS-w8858

内見予約
お問合せ

セールスポイント

特徴
    セールスコメント 現況賃貸中71,500円/月
    表面利回14.79%

    現在、法人契約中☆彡

    詳細はお問い合わせ下さい!

    収益不動産を中心に扱う専門会社です。

    ◎【独自の仕入れルート】が当社の強みです。
    独自の選定基準に基づき物件選定を行い、中長期運用や出口戦略を含むトータルでの運用提案を致します。

    ◎【資金調達のご相談賜ります】
    不動産投資に強みのある銀行の探し方等資金計画をご提案

    ◎賃貸管理もワンストップでお任せ下さい。
    経験豊富な専任スタッフがオーナー業務を代行致します。

    ◎来店&商談ブース有り 空き時間を活用してのオンライン相談も随時受け承ります。

    ◎WEB電子契約により安全で効率的な取引を提供致します。

    ◎まずはお気軽にご相談下さい。
    【便利なLINE登録はこちら】 【無料会員登録はこちら】

    物件概要

    階数 -階建 用途地域 第一種低層住居専用地域
    構造 S造
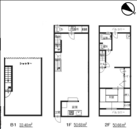
    間取り
    土地面積 57m² (指定なし) (17.24坪) 建物面積 -
    専有面積帯
    テラス面積 - 専用庭面積 -
    現況 賃貸中 引渡し 相談
    土地権利 所有権 採光面 -
    駐車場 - 駐輪場 -
    法令上の制限 - 都市計画 市街化区域
    地目 宅地 地勢
    接道状況 - 総戸数 -
    私道負担面積 - セットバック -
    建築確認番号
    取引態様 仲介
    情報更新日 2025年12月25日 次回更新日 2026年01月08日
    情報更新日:2025年12月25日 次回更新予定日:2026年01月08日
    ※各種情報と差異がある場合は現況優先となります
    • こちらの物件を見たお客様はこんな物件もチェックしています。
    • お気に入り物件

    同じ価格帯の物件はこちら

    この物件以上の利回り物件はこちら

    株式会社ライズ
    06-6232-8758
    「ホームページを見た」とお伝え下さい。

    お問い合わせ番号をお伝えください
    RHS-w8858

    内見予約
    お問合せ

    お問い合わせ

    1. 1
      内容入力
    2. 2
      内容確認
    3. 3
      完了
    お問合せ内容必須
    【備考欄】
    詳細な見学ご希望時間、ご質問、ご希望条件などがございましたらお聞かせ下さい。
    (2000文字以内)
    お名前必須
    メールアドレス必須
    ※ご記入いただいたメールアドレス宛てに、お問合せ内容の確認メールをお送りいたします。
    ※Yahoo!メールなどのフリーメールをご利用の場合、迷惑メールフォルダに入る場合があります。
     迷惑メールのフォルダ・設定等をご確認下さい。
    電話番号必須
    FAX(任意)
    ※ご入力いただいたお客さまの個人情報は、「個人情報の取扱いについて」に基づき適正に取り扱います。必ずお読みになり、同意の上お問い合わせください。

    お気軽にお問い合わせください

    06-6232-8758
    物件番号 RHS-w8858
    ※「ホームページを見た」
    とお伝え下さい。

    お役立ち機能

    この物件を
    携帯で確認!

    物件探しに役立つメリットが沢山 会員登録をする
    • 売却を依頼する
    • LINEを登録する

    物件検索

    SEARCH

    ワンクリック検索

    詳細検索 もっと詳しく検索したい方はこちら
    • 販売実績一覧を見る

    REAL ESTATE SALE

    不動産売却に
    ついて

    売却もライズにお任せ。

    販売実績多数の信頼と実績の頼れるパートナーが豊富な経験と専門知識で安心サポート。

    当社について

    COMPANY

    ライズの店舗内観写真

    株式会社ライズ

    • 所在地

      〒 540-0012
      大阪市中央区谷町1丁目2番7号
      大手前ビル8階

    • TEL / FAX

      06-6232-8758 / 06-6232-8759

    • 営業時間

      毎週月曜日〜金曜日 / 10時〜20時

    PAGE TOP

    Copyright ©raise-corp.com All rights reserved.