岬ハイツ 兵庫県神戸市兵庫区御崎町1丁目|350万円の投資マンション|株式会社ライズ
| 価格 | 350万円 | ||||
|---|---|---|---|---|---|
| 利回り | 14.40% | 満室時想定 年収/月収 |
50.4万円 / 4.2万円 | ||
| 所在地 | 兵庫県神戸市兵庫区御崎町1丁目 この地域周辺の物件を見る | 築年月 | 1978年9月築 | ||
| 交通 |
神戸市海岸線 御崎公園 徒歩8分
|
||||
| 特徴 |
|
|---|---|
| セールスコメント | - 収益不動産を中心に扱う専門会社です。 ◎【独自の仕入れルート】が当社の強みです。 独自の選定基準に基づき物件選定を行い、中長期運用や出口戦略を含むトータルでの運用提案を致します。 ◎【資金調達のご相談賜ります】 不動産投資に強みのある銀行の探し方等資金計画をご提案 ◎賃貸管理もワンストップでお任せ下さい。 経験豊富な専任スタッフがオーナー業務を代行致します。 ◎来店&商談ブース有り 空き時間を活用してのオンライン相談も随時受け承ります。 ◎WEB電子契約により安全で効率的な取引を提供致します。 ◎まずはお気軽にご相談下さい。 【便利なLINE登録はこちら】 【無料会員登録はこちら】 |
| 所在階/階数 | 3階階/地上4階建 | 用途地域 | 第二種住居地域 |
|---|---|---|---|
| 構造 | RC造 | ||
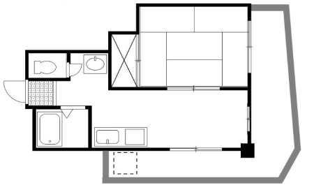
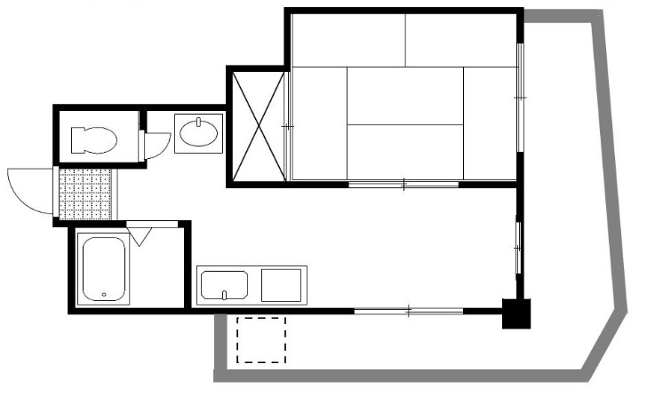
| 間取り | 1DK | ||
| 専有面積 | 25.6m2 | ||
| バルコニー面積 | - | ||
| 管理費 | - | 修繕積立金 | - |
| 管理態様 | 自主管理 | 管理組合 | - |
| テラス面積 | - | 専用庭面積 | - |
| 現況 | 賃貸中 | 引渡し | 相談 |
| 土地権利 | - | 採光面 | - |
| 駐車場 | - | 駐輪場 | - |
| 取引態様 | 仲介 | ||
| 情報更新日 | 2025年12月09日 | 次回更新日 | 2025年12月23日 |
TEL
06-6232-8758
(受付時間:10時〜20時 / 土曜日・日曜日定休)
Copyright ©raise-corp.com All rights reserved.
-